hero-image-0
hero-image-1

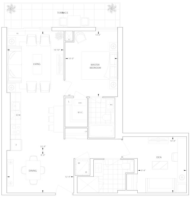
1W+DT Plan

101 Erskine
Sold
Sold
1
1
1
From 850
unit-banner-imageunit-banner-imageunit-banner-image
1W+DT Plan details
1W+DT Plan is now sold.
Check out available nearby plans below.