New Homes for Sale
Articles
Professionals
Log in
Sign up
Photos 5
Videos 0
Map
Interactive floor plan 0
Virtual 0
Crockett 6A5 Plan
By
Historymaker Homes
|
Seven Oaks Townhomes
Community
Available homes
Get updates
Save
Request info
Request info
Community
Available homes
Request info
Get updates
Save
Request info
Seven Oaks Townhomes
Builder website
Request info
Sold
Sold
2
3
2
1
From 1,685
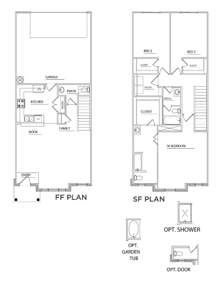
Crockett 6A5 Plan details
Address:
Tomball, TX 77375
Plan type:
Two+ Story
Beds:
3
Full baths:
2
Half baths:
1
SqFt:
From 1,685
Ownership:
Fee simple
Interior size:
From 1,685 SqFt
Lots available:
64c2ae306c92427bb326632f-lot, 64c2ae2c6c924201662662f9-lot
Lot pricing included:
No
Garage:
2
Crockett 6A5 Plan is now sold.
Interested? Receive updates
Stay informed with Livabl updates on new community details and available inventory.
Get updates