






























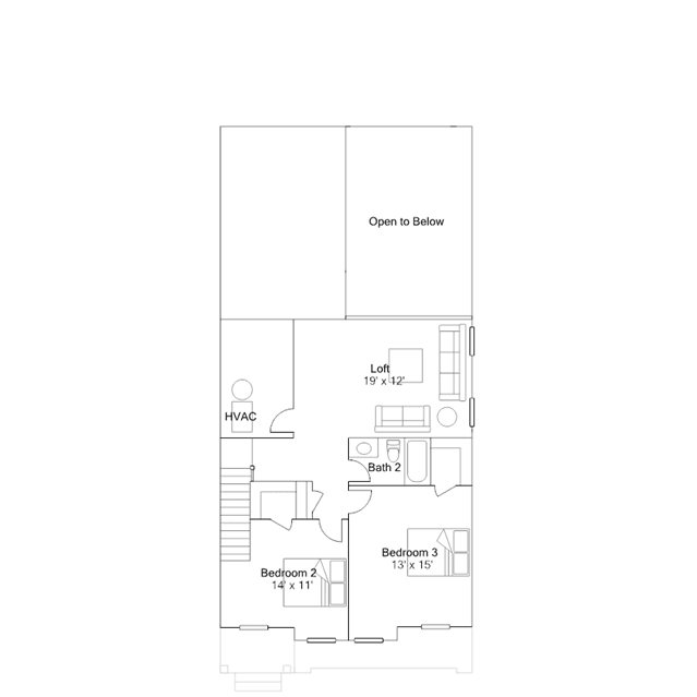
This two-story home has a great layout, with the owner's suite conveniently located on the first level. The rest of the first floor features a free flowing design from the kitchen with island, to the dining room and Great Room. Upstairs is a loft and two secondary bedrooms. An optional fourth bedroom is available at select homesites.