




























































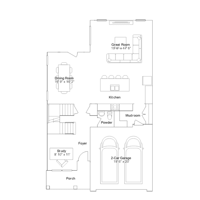
This three-story home provides plenty of space. On the first floor is a study near the entry, while the rest showcases an open layout shared by the dining room, kitchen with island and spacious Great Room. On the second level is a bonus room surrounded by three secondary bedrooms, each with an en-suite or shared Jack-and-Jill style bathroom. The owner's suite features beautiful tray ceilings, a spa-like bathroom and split walk-in closets. A basement level with several provides numerous possibilities.