hero-image-0
hero-image-1
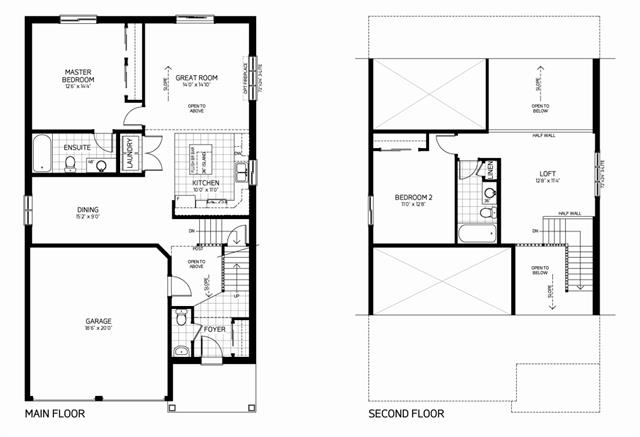
West Community
Sold
Sold
2
2
1
1
From 1,672
unit-banner-imageunit-banner-imageunit-banner-image
Monroe Plan details
Monroe Plan is now sold.
Check out available nearby plans below.