hero-image-0
hero-image-1

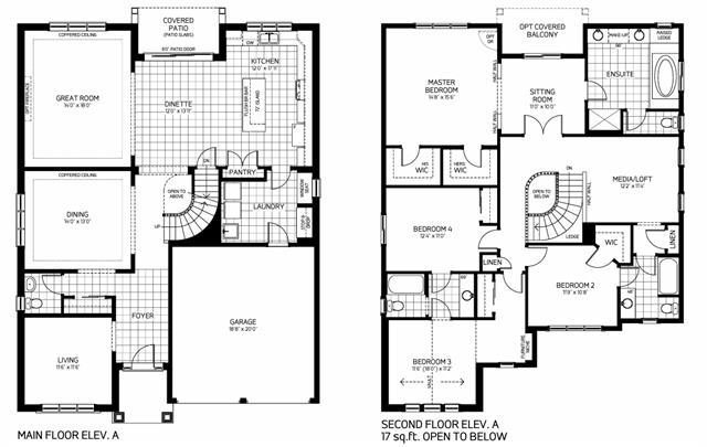
Kingsbridge Plan

West Community
Sold
Sold
4
3
1
From 3,243
unit-banner-imageunit-banner-imageunit-banner-image
Kingsbridge Plan details
Kingsbridge Plan is now sold.
Check out available nearby plans below.