





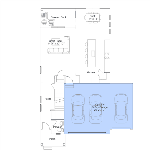
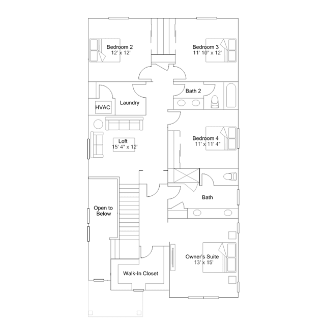
This two-story home features a generous open floorplan on the first floor shared between the Great Room, kitchen and nook, with access to a covered deck for effortless indoor-outdoor living and entertaining. All four bedrooms and a versatile loft occupy the second level. Homebuyers have the option to choose a two or three-car garage.
Stay informed with Livabl updates on new community details and available inventory.