







































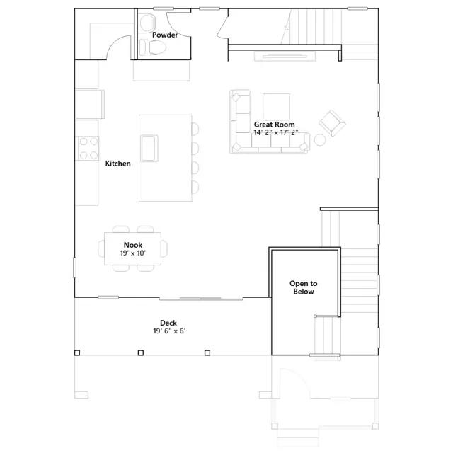
This new three-story home offers ample room to live and grow. On the second floor is an inviting open-concept floorplan shared between the kitchen, living and dining areas to maximize interior space. Three bedrooms make up the third floor, including the luxurious owners suite with a spa-inspired bathroom and walk-in closet.
Stay informed with Livabl updates on new community details and available inventory.