






























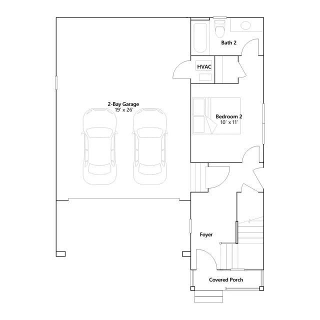
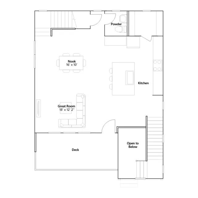
The first floor of this three-story home is host to a comfortable secondary bedroom with an en-suite bathroom, perfect as a guest suite or office. An open-concept floorplan comprises the second level, blending the kitchen, living and dining areas for seamless entertaining and multitasking. Three additional bedrooms are located on the third floor, including the luxurious owners suite with a spa-inspired bathroom and walk-in closet.
Stay informed with Livabl updates on new community details and available inventory.