




















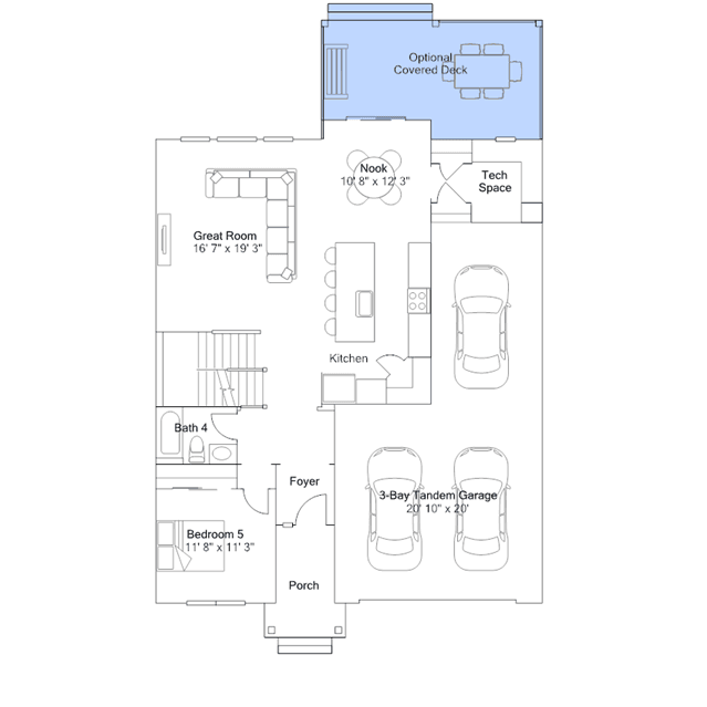
This two-story home offers an open layout where the Great Room, nook and kitchen merge effortlessly on the first level, while a bedroom near the foyer is an ideal space for overnight guests. The second floor provides plenty of space for the whole family with four more bedrooms, including the owners suite with dual walk-in closets and a spa-inspired bathroom.