
























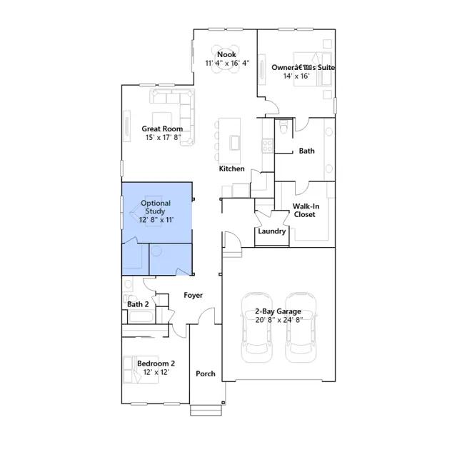
This new two-story home features a secluded study off the foyer, perfect as a personal studio or office. An open-concept floorplan on the first floor combines the kitchen, living and dining areas for seamless entertaining and multitasking. All four bedrooms are located on the second level, including the luxe owners suite with a spa-inspired bathroom and walk-in closet.
Stay informed with Livabl updates on new community details and available inventory.