hero-image-0
hero-image-1
hero-image-2
hero-image-3

2879 E 103rd Drive

Arras Park
For sale
MOVE IN READY
For sale
$489,900
Available
2
3
2
1
1,576
2879 E 103rd Drive details
unit-banner-image
unit-banner-image
unit-banner-image

Contact sales center

Get additional information including price lists and floor plans.

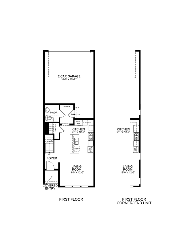
Floor plan

The Cascade

Arras Park

Discover your perfect sanctuary within this expansive layout that effortlessly connects the spacious primary bedroom to a serene primary bath and a generous walk-in closet. Source: Scott Felder Homes

Interested? Receive updates

Stay informed with Livabl updates on new community details and available inventory.