






























Get additional information including price lists and floor plans.

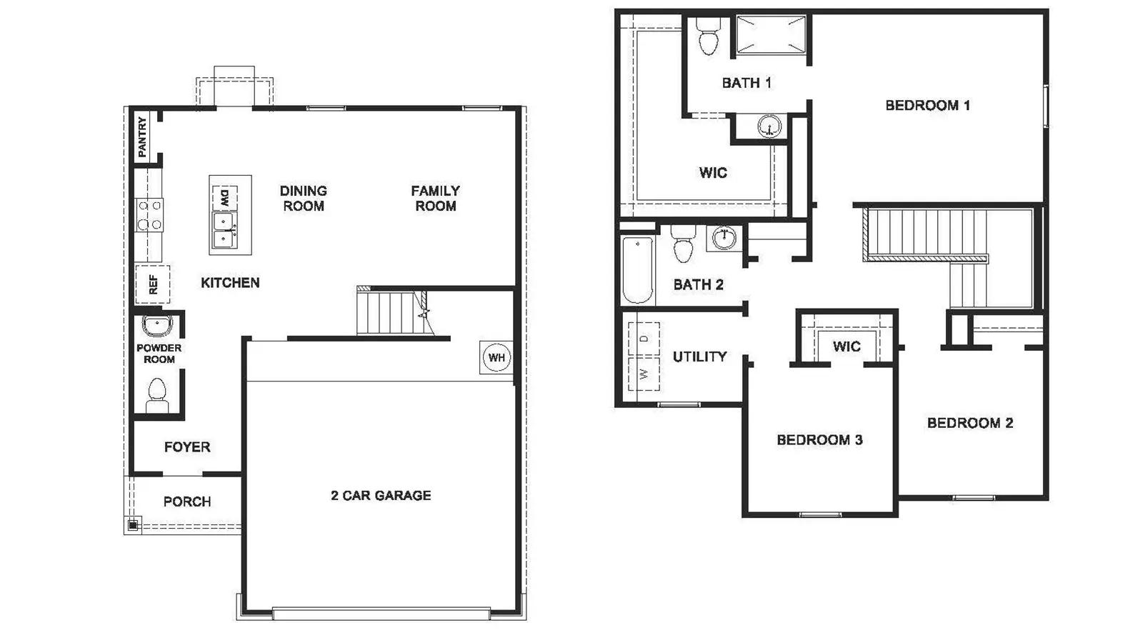
Discover the Davis floorplan at Pecan Creek, a beautifully designed two-story home with a 2-car garage in Temple, Texas, that checks all the boxes. Offering approximately 1,470 sq. ft., this 3-bedroom, 2.5 bath home blends comfort, style and functionality. Step inside, and youre welcomed by a thoughtfully designed kitchen that flows seamlessly into the open-concept living and dining areas-perfect for both everyday living and entertaining. The kitchen features a spacious island, sleek stainless-steel appliances, and generous counter space to make hosting a breeze. A convenient half-bath is located nearby before you head upstairs. On the second floor, the primary bedroom awaits, a private retreat with an attached primary bathroom featuring a walk-in shower and a spacious walk-in closet. Two secondary bedrooms and a secondary bathroom share this level, along w...
Stay informed with Livabl updates on new community details and available inventory.