Residence 3
Prado
Chardonnay Hills, Temecula
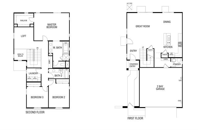
Residence 1
Laurel
Crestview at Sommers Bend
Roripaugh Ranch, Temecula
Residence 2