





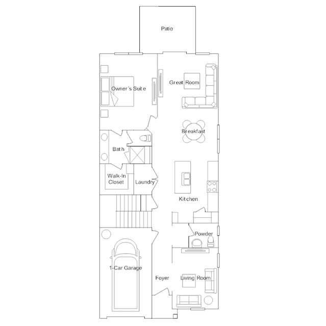
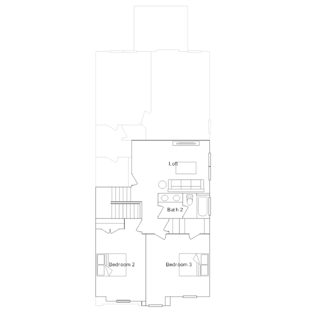
Upon entry, this two-story home showcases a living room ideal for hosting guests and residents alike. Down the foyer is a cohesive open-concept layout with an attached patio to simplify indoor-outdoor activities. The tranquil owner's suite with en-suite bathroom is tucked into the back corner on the first floor, affording homeowners privacy away from the remaining upstairs bedrooms. The top level hosts a large loft that can function as another gathering area and two secondary bedrooms.