
















Get additional information including price lists and floor plans.
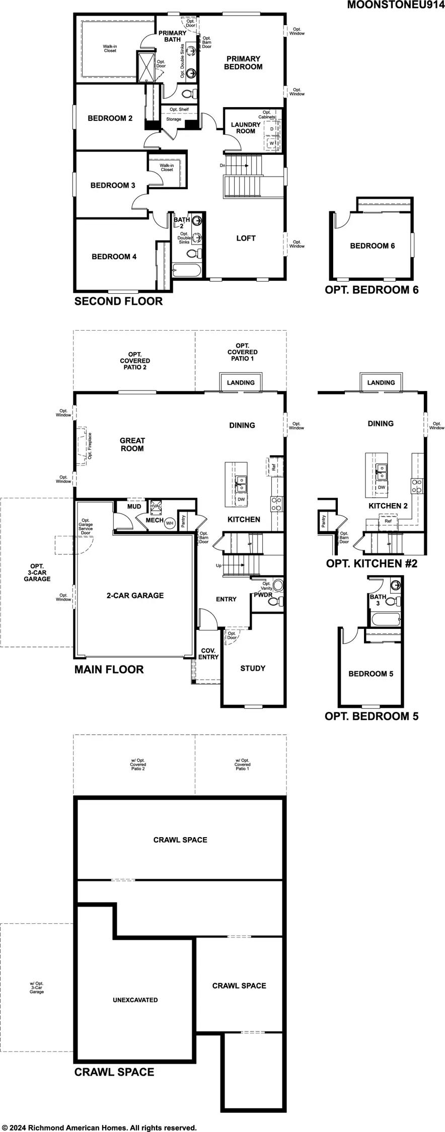
Spacious and accommodating, the two-story Moonstone plan features an open-concept main floor and four charming bedrooms upstairs. This home will be built with a study or extra bedroom. Toward the back of the home, a great room flows into an inviting kitchen with a center island and adjacent dining room. Upstairs, enjoy a sprawling primary suite with an attached bath and walk-in closet. The second floor will be built with either a loft or an extra bedroom. Designer curated finishes included!
Stay informed with Livabl updates on new community details and available inventory.