
















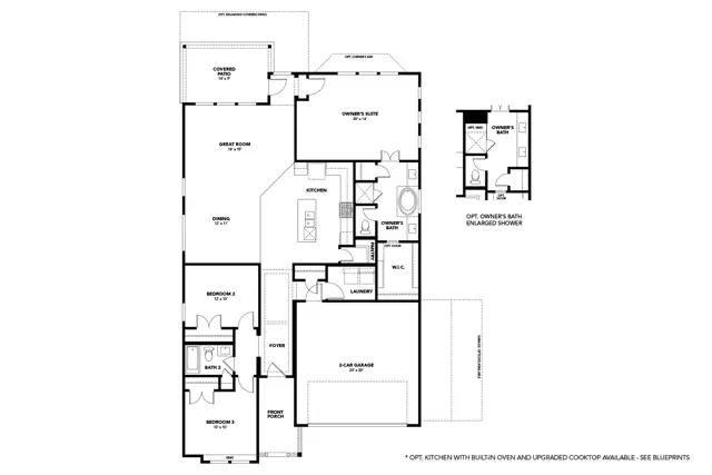
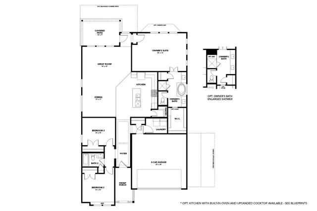
The Mahogany delivers the warmth of home with design that adapts to your lifestyle. The wide-open living area anchors the home with an inviting family room, casual dining space, and island kitchen that are ideal for entertaining or quiet evenings at home. The owners suite is privately situated at the back of the home, featuring dual sinks and generous closet space. Two additional bedrooms and a centrally located bathroom provide comfort for guests or family. Whether youre relaxing under the covered patio, hosting indoors, or simply enjoying the moment, the Mahogany makes it feel effortless.
Stay informed with Livabl updates on new community details and available inventory.