


Get additional information including price lists and floor plans.
Images coming soon
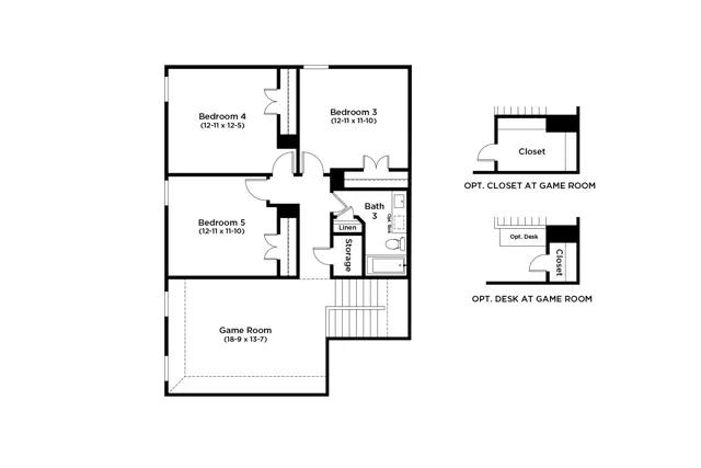
Elegant and expansive, the Meyerson brings spacious two-story living to life with sophistication and smart design. A bright, open kitchen anchors the main level, seamlessly connected to the dining area and great room for effortless entertaining and everyday ease. The thoughtful layout allows light to flow freely through the space, creating an airy, inviting atmosphere from morning to night. The downstairs owners suite provides a private retreat with a luxurious bath and oversized closet. For the ultimate convenience, choose to add a door from the owners closet to the laundry room to make laundry day a breeze. A secondary bedroom on the main floor adds flexibility for overnight guests or multigenerational living. The included flex space can be personalized to suit your lifestyle as a playroom, home office or relaxation room. Upstairs, three more bedrooms surround ...
Stay informed with Livabl updates on new community details and available inventory.