New Homes for Sale
Articles
Professionals
Log in
Sign up
Photos 10
Videos 0
Map
Interactive floor plan 0
Virtual 0
The Alexander II Plan
By
Bob Ward Trademark Homes
|
Meade's Crossing Single Family Homes
Community
Available homes
Get updates
Save
Request info
Request info
Community
Available homes
Request info
Get updates
Save
Request info
Meade's Crossing Single Family...
Get updates
Request info
Sold
Sold
3
2
1
From 2,490
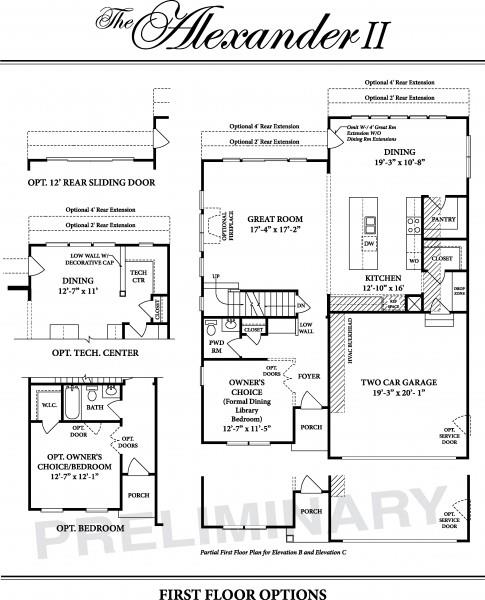
The Alexander II Plan details
Address:
Taneytown, MD 21787
Plan type:
Detached Two+ Story
Beds:
3
Full baths:
2
Half baths:
1
SqFt:
From 2,490
Ownership:
Fee simple
Interior size:
From 2,490 SqFt
Lot pricing included:
Yes
The Alexander II Plan is now sold.