




















































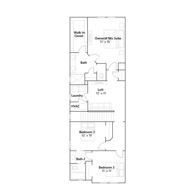
The collections largest townhome offers a two car garage as well as a contemporary open floorplan among the kitchen, dining space and family room on the first floor. A covered patio provides indoor-outdoor dining opportunities, while upstairs, a versatile loft is great for family time. The second level also features all three bedrooms, including a large owners suite.
Stay informed with Livabl updates on new community details and available inventory.