










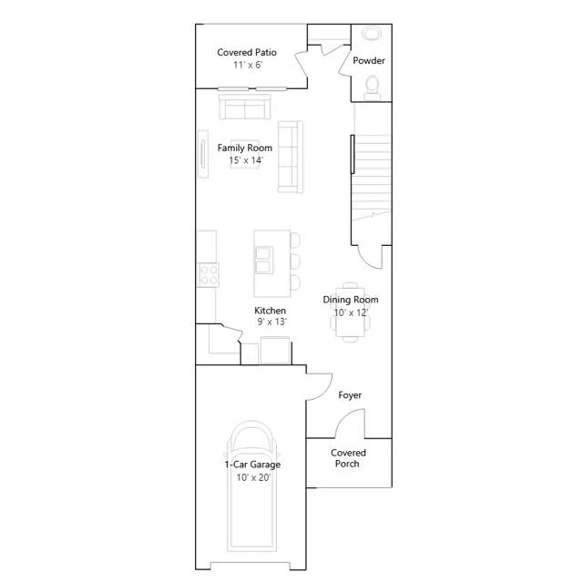
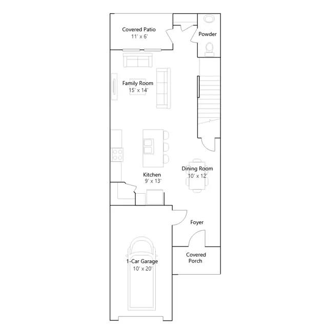
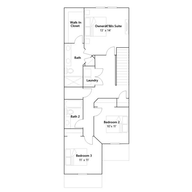
This two-story townhome optimizes space for peaceful living. The first-floor features an open design among the dining room, kitchen and family room for a contemporary edge, while the attached covered patio is fantastic for indoor-outdoor entertaining. The second level features all three bedrooms, including the impressive owners suite with a private bathroom.
Stay informed with Livabl updates on new community details and available inventory.