New Homes for Sale
Articles
Professionals
Log in
Sign up
Photos 4
Videos 0
Map
Interactive floor plan 0
Virtual 0
10906 Flying Squirrel Ave
By
Maronda Homes
|
Live Oak Hills
Community
Get updates
Save
Request info
Request info
Community
Request info
Get updates
Save
Request info
Live Oak Hills
Get updates
Request info
Sold
Sold
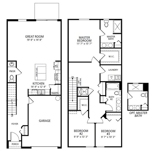
3
2
1
1,647
10906 Flying Squirrel Ave details
Address:
Tampa, FL 33610
Plan type:
Two+ Story
Beds:
3
Full baths:
2
Half baths:
1
SqFt:
1,647
Ownership:
Fee simple
Interior size:
1,647 SqFt
Lot pricing included:
Yes
10906 Flying Squirrel Ave is now sold.