
















































































Get additional information including price lists and floor plans.
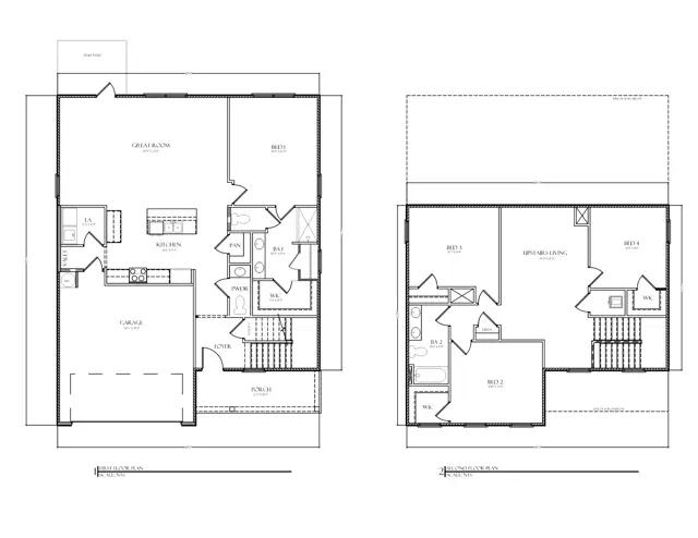
Welcome to the Belfort plan in Olson Ridge, our new home community in Tallahassee, FL. This is a 4-bedroom, 2.5-bathroom two-story home with over 2200 Sq. Ft. and a two-car garage. The Belfort floorplan is perfect for any stage of life featuring a first floor primary bedroom suite and laundry room. As you enter, the open concept kitchen and great room welcome all in. This is the perfect space for entertaining and daily living. The primary suite on the first floor is your private retreat. The primary bathroom features double vanity, private water closet, large shower, and an oversized closet. When you go upstairs, you are greeted by a versatile loft on the second floor which is surrounded by the three additional bedrooms. Each bedroom is roomy and feature a spacious closet. The second full bath has a double vanity and shower/tub combo. This floor plan can be the...
Stay informed with Livabl updates on new community details and available inventory.