hero-image-0

34 15255 SITKA DRIVE

By

Anthem

   |   

Wood & Water

Wood & Water
Sold
Sold
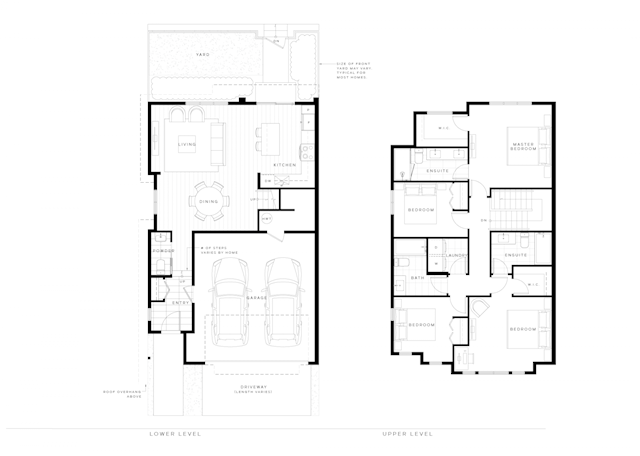
4
3
1
1,615
34 15255 SITKA DRIVE details
unit-banner-image
unit-banner-image
unit-banner-image
34 15255 SITKA DRIVE is now sold.
Check out available nearby homes below.