hero-image-0

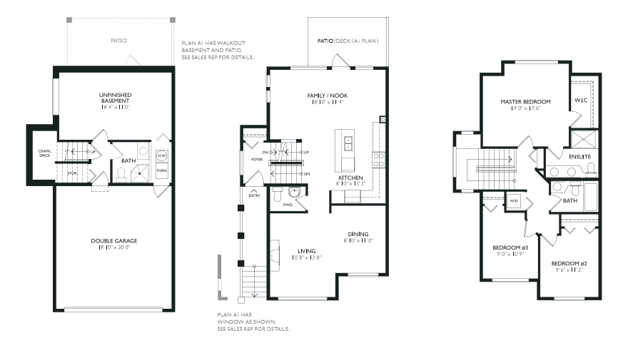
Plan A & A1 unfinished bsmnt

By

Vesta Properties

   |   

Vantage

Vantage
Sold
Sold
3
2
1
From 1,525
unit-banner-imageunit-banner-imageunit-banner-image
Plan A & A1 unfinished bsmnt details
Plan A & A1 unfinished bsmnt is now sold.
Check out available nearby plans below.