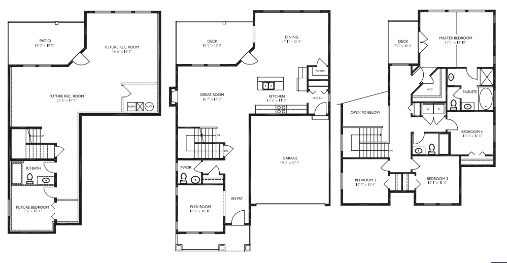
Plan E (Left)
Prestige - Duplex Homes
Abbey Ridge, Surrey
PLAN 2 - 2 BED SUITE
Mirada Estates
Willoughby - Willowbrook, Langley Township
Fairmont
Brighton West
Plan D
Nature's Walk - Single-Family Homes
Pitt Meadows City Centre, Pitt Meadows
Dawson
Brighton North
Plan E
Plan Aa
Archer at Latimer