hero-image-0
University District - Alumni T...
Sold
Sold
2
2
From 800
unit-banner-imageunit-banner-imageunit-banner-image
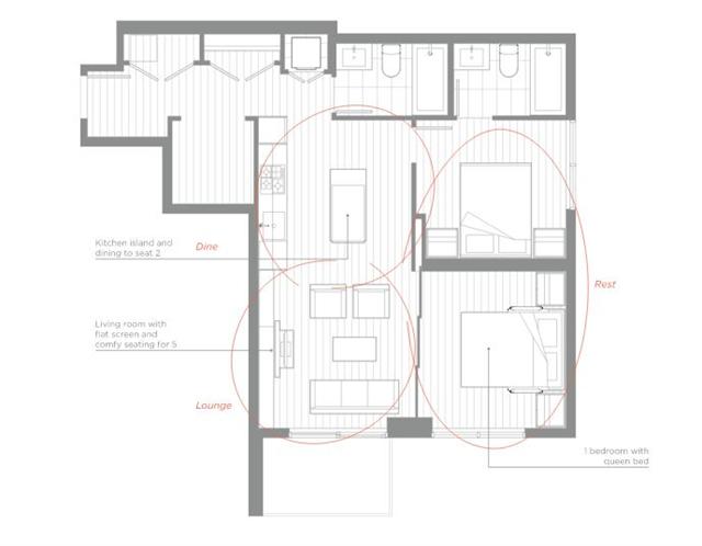
F2 Plan details
F2 Plan is now sold.
Check out available nearby plans below.