hero-image-0
University District - Alumni T...
Sold
Sold
2
1
From 736
unit-banner-imageunit-banner-imageunit-banner-image
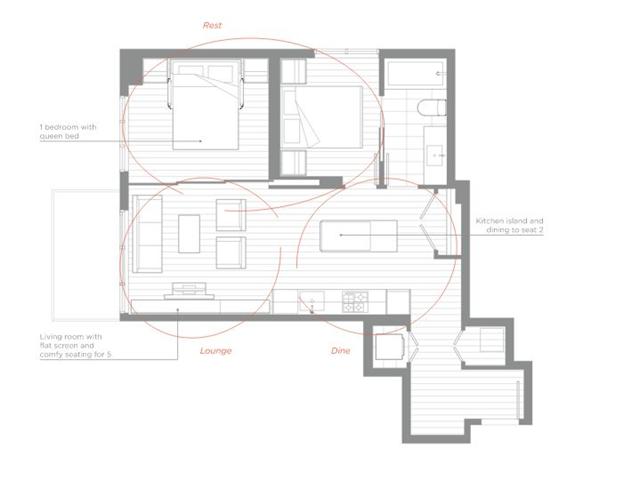
F Plan details
F Plan is now sold.
Check out available nearby plans below.