hero-image-0
University District - Alumni T...
Sold
Sold
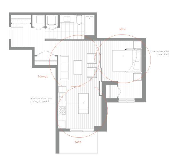
1
1
From 630
unit-banner-imageunit-banner-imageunit-banner-image
A5 Plan details
A5 Plan is now sold.
Check out available nearby plans below.