hero-image-0

Plan B

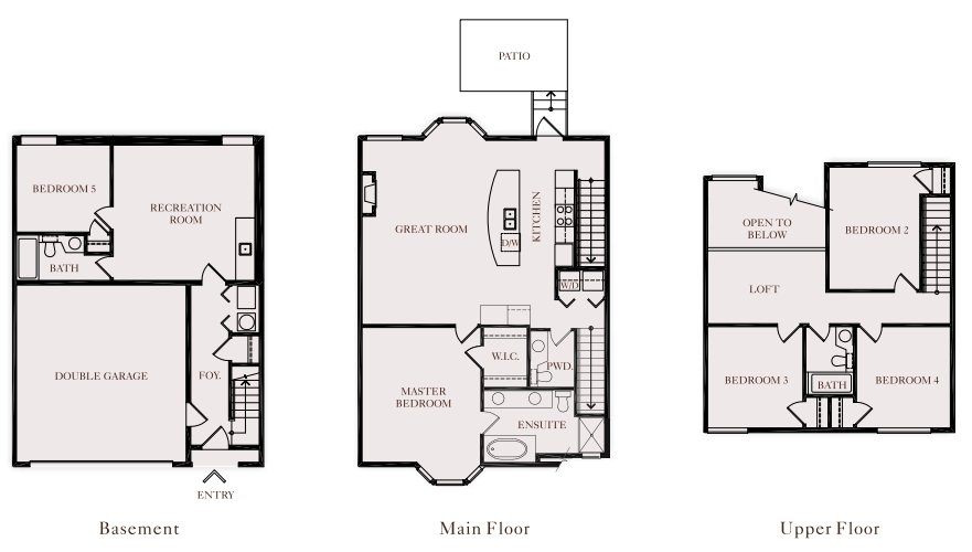
The Belcroft
Sold
Sold
4
From 2,784
unit-banner-imageunit-banner-imageunit-banner-image
Plan B details
Plan B is now sold.
Check out available communities below.