FEATURED
D
Elwynn Green
Fleetwood, Surrey
B1
A2
A1
G
B
D2
A, A3, A6, A7
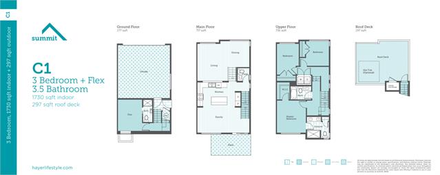
Summit townhomes inspire outdoor living in Surrey’s Panorama Heights neighbourhood, with private rooftop patios
The spacious patios offer an optional BBQ hookup and are hot-tub friendly.