hero-image-0
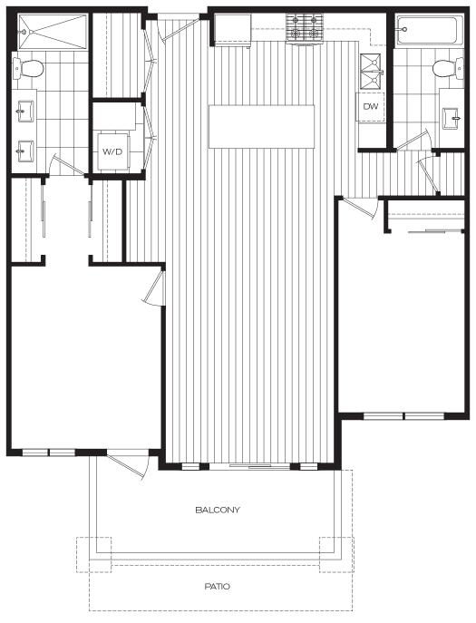
South Point Walk
Sold
Sold
2
2
From 1,032
unit-banner-imageunit-banner-imageunit-banner-image
C Plan details
C Plan is now sold.
Check out available nearby plans below.