hero-image-0
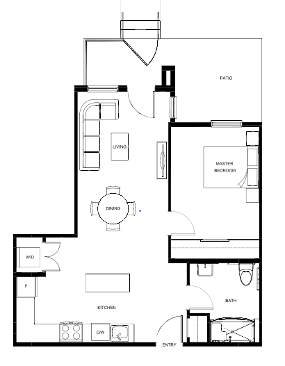
Park and Maven (Condos - Cardi...
Sold
Sold
1
1
unit-banner-imageunit-banner-imageunit-banner-image
E1 Accessible Plan details
E1 Accessible Plan is now sold.
Check out available nearby plans below.