hero-image-0

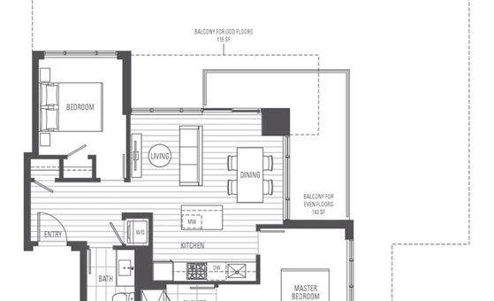
Unit 702

One Central
Sold
Sold
2
2
725
Unit 702 details
unit-banner-image
unit-banner-image
unit-banner-image
Unit 702 is now sold.
Check out available nearby condos below.

Interested? Receive updates

Stay informed with Livabl updates on new community details and available inventory.