hero-image-0

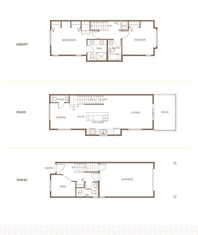
B1a Plan

By

Manorlane Homes

   |   

GEORGE

GEORGE
Sold
Sold
2
2
From 1,329
unit-banner-imageunit-banner-imageunit-banner-image
B1a Plan details
B1a Plan is now sold.
Check out available communities below.