hero-image-0

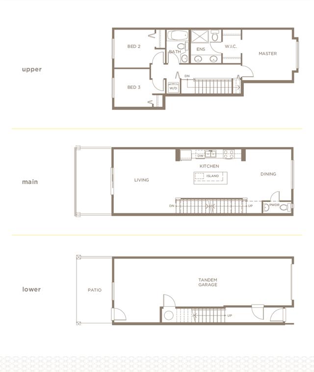
A Plan

By

Manorlane Homes

   |   

GEORGE

GEORGE
Sold
Sold
3
2
1
From 1,352
unit-banner-imageunit-banner-imageunit-banner-image
A Plan details
A Plan is now sold.
Check out available nearby plans below.