hero-image-0

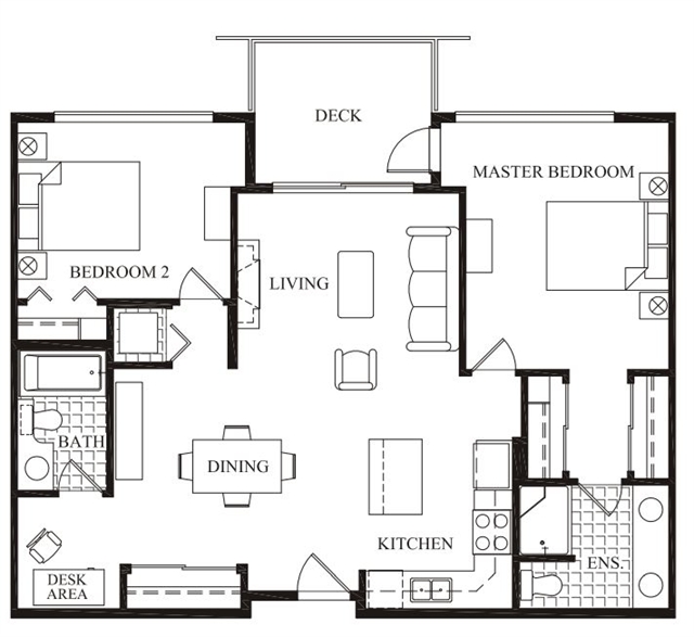
Unit 209

By

Genex

   |   

Gemini Residences

Gemini Residences
Sold
Sold
2
1,013
Unit 209 details
unit-banner-image
unit-banner-image
unit-banner-image
Unit 209 is now sold.
Check out available nearby condos below.