hero-image-0

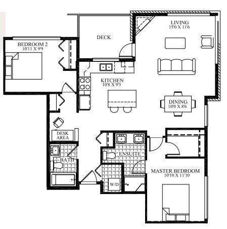
Unit 207

By

Genex

   |   

Gemini Residences

Gemini Residences
Sold
Sold
2
2
1,067
Unit 207 details
unit-banner-image
unit-banner-image
unit-banner-image
Unit 207 is now sold.
Check out available nearby condos below.