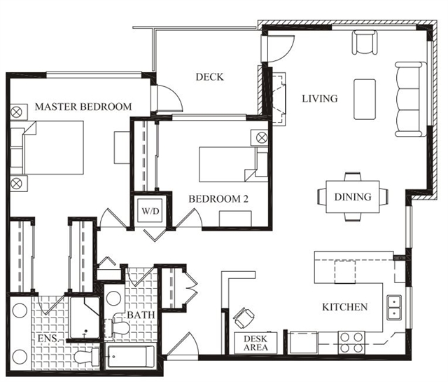
108
King + Crescent (Cedar)
King George Corridor, Surrey
208
Monaco
South Surrey, White Rock
304
Kingsgate
309
305
311
312