Rosemary
Brighton North
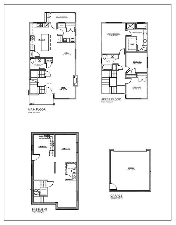
Willoughby - Willowbrook, Langley Township
Parkdale
PLAN 3C 2 BED SUITE
Mirada Estates
Plan C3
Nature's Walk - Single-Family Homes
Pitt Meadows City Centre, Pitt Meadows
Plan C4
PLAN 1 - 2 BED SUITE
Alderwood
Hardwick