Alderwood
Brighton North
Willoughby - Willowbrook, Langley Township
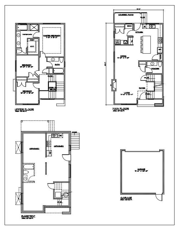
Plan C4
Nature's Walk - Single-Family Homes
Pitt Meadows City Centre, Pitt Meadows
PLAN 1 - 2 BED SUITE
Mirada Estates
Plan C3
PLAN 2D 2 BED SUITE
Rosemary
PLAN 3A 2 BED SUITE
PLAN 3C 2 BED SUITE