hero-image-0

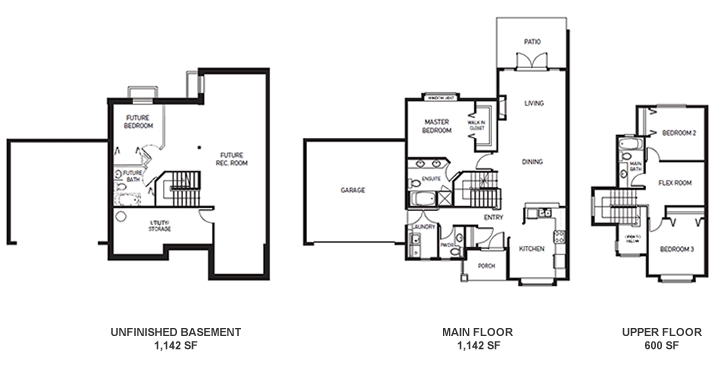
Residence 6 Plan

Charlton at Provinceton
Sold
Sold
3
From 1,742
unit-banner-imageunit-banner-imageunit-banner-image
Residence 6 Plan details
Residence 6 Plan is now sold.
Check out available nearby plans below.