hero-image-0

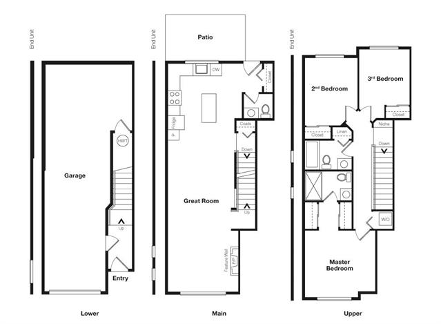
F Plan

By

Garcha

   |   

Canvas Townhomes

Canvas Townhomes
Sold
Sold
3
2
1
From 1,462
unit-banner-imageunit-banner-imageunit-banner-image
F Plan details
F Plan is now sold.
Check out available nearby plans below.