


































































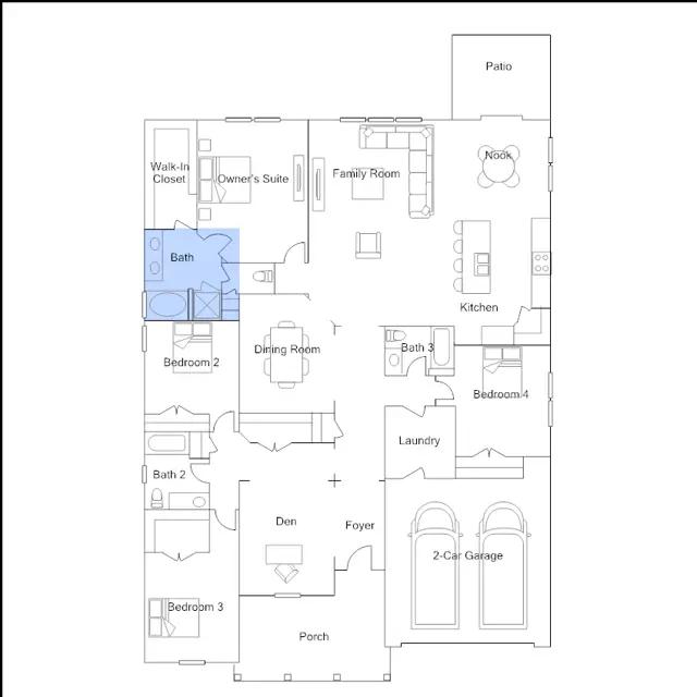
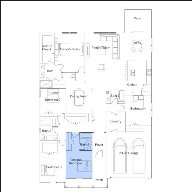
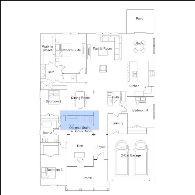
This single-story home is the largest plan in the collection and features a den, a formal dining room and an open concept layout in the main living area. The outdoor patio connects to the breakfast area for easy outdoor living, with an option for a covered porch. Throughout the home are four comfortable bedrooms, including the owners suite. At select homesites is an optional second floor showcasing extra living space.