




































































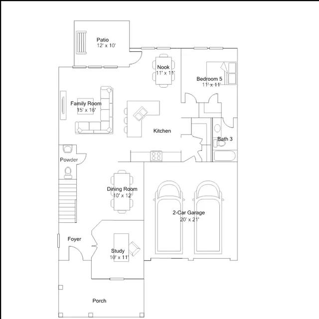
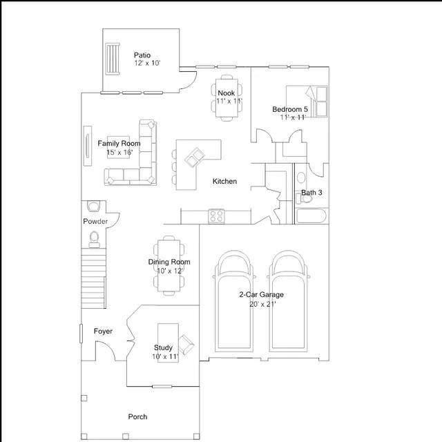
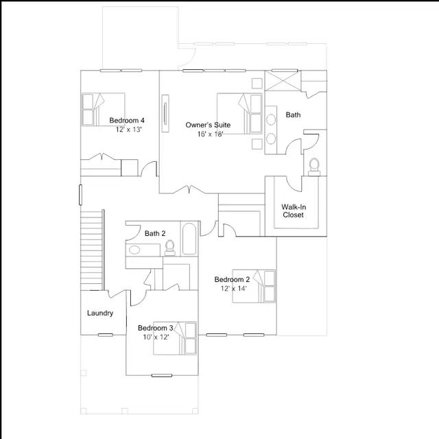
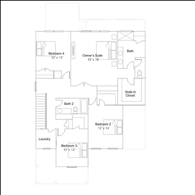
This home offers single-story living featuring a formal dining room and an open living space that flows out to the covered patio. There are three bedrooms, including the owners suite with a private full-sized bathroom. Select homesites have an optional second-floor bonus room.