























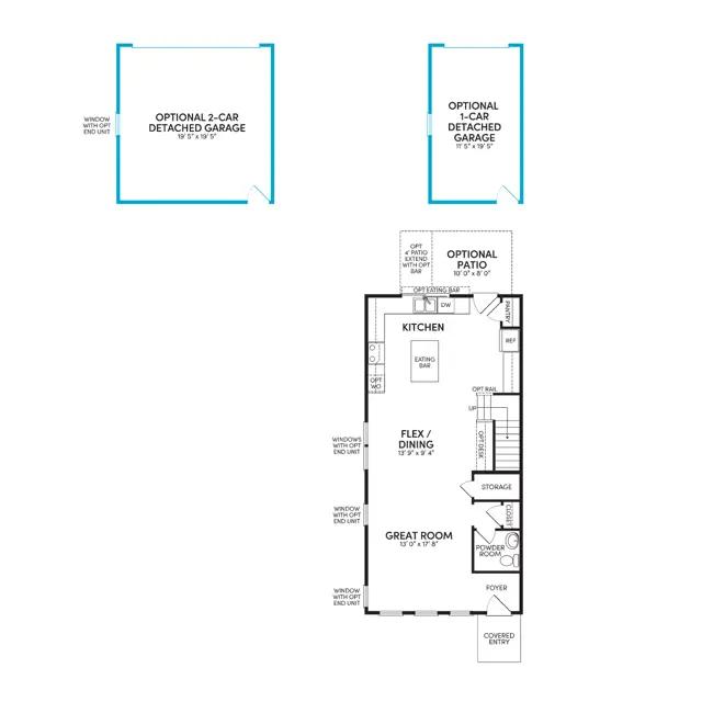
Welcome to this charming two-level townhome that is a perfect blend of comfort and contemporary design. The heart of the home is its central kitchen, boasting an eat-in island connecting seamlessly to the great room and flex space on the main level. It's the ultimate setup for gatherings and entertaining. Upstairs, the is the primary suite, complete with a large walk-in closet and a cozy en suite bathroom. There are also 2 secondary bedrooms, full bath, and a conveniently located laundry area. Come experience the best of low-maintenance living in the Sage townhome and soak up all the fantastic amenities and vibrant lifestyle, waking distance from the Midtown Club at Nexton.
Stay informed with Livabl updates on new community details and available inventory.