





































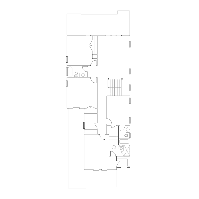
This two-story home is the largest plan in the collection and features a wraparound porch, plus a covered rear patio for outdoor living. On the first floor is an open dining room, kitchen and family room, along with the owners suite. Upstairs is a loft surrounded by four bedrooms. A two-car detached garage completes the home.