





























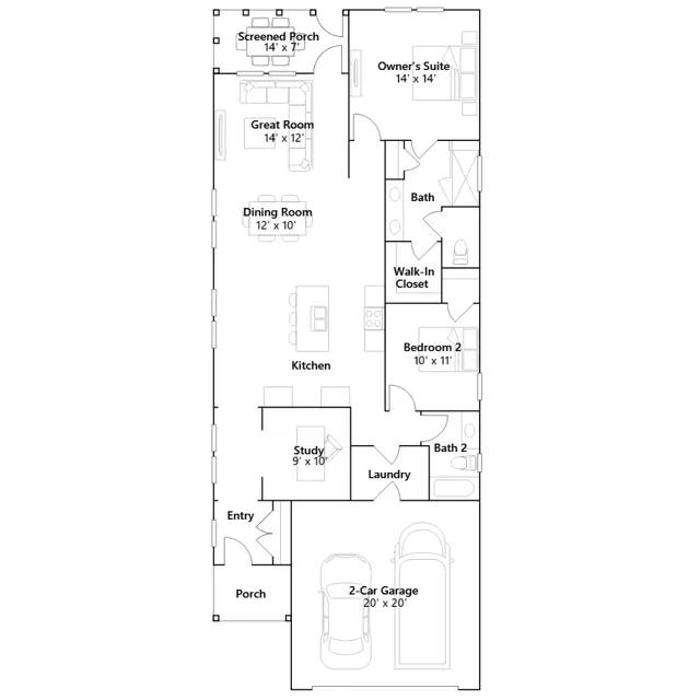
This new single-story home offers a low-maintenance layout ideal for modern lifestyles. Upon entry is a convenient study, perfect for a studio or home office. An open plan shared between the kitchen, living and dining areas features direct access to a screened porch, adjacent to a comfortable bedroom suite and full bathroom. At the back of the home, a luxurious owners suite provides a private retreat with an en-suite bathroom and walk-in closet.
Stay informed with Livabl updates on new community details and available inventory.