









































































Get additional information including price lists and floor plans.
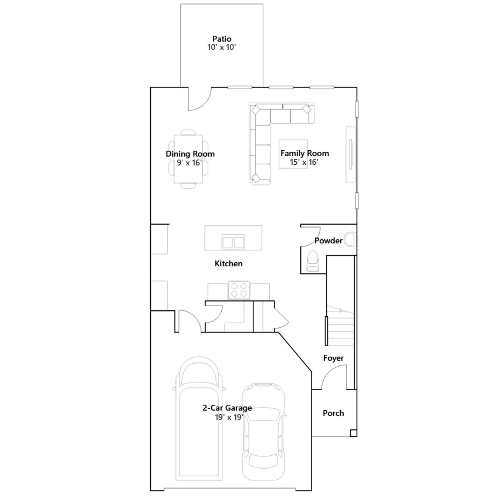
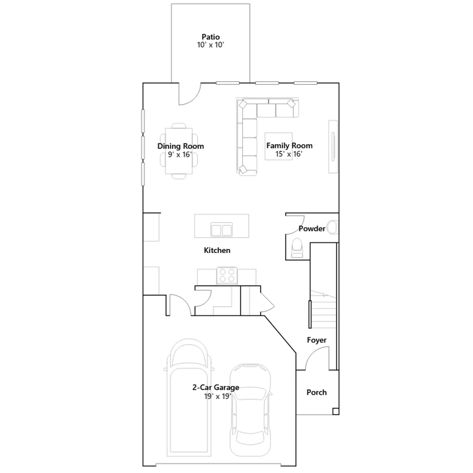
This new two-story home features a modern layout that maximizes space and comfort. On the first floor is the open-concept main living area, which includes a fully equipped kitchen, intimate dining room and a sunny family room with direct patio access. Upstairs a versatile loft for additional entertainment space and all three bedrooms. The owners suite is a tranquil retreat with a private bathroom and walk-in closet.
Stay informed with Livabl updates on new community details and available inventory.