









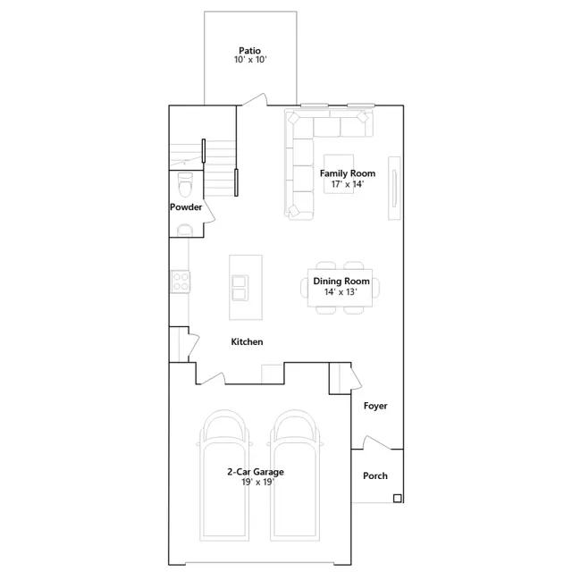
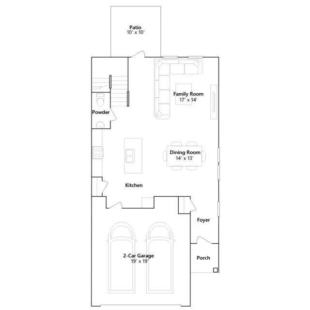
This new two-story home is host to an inviting open-concept layout on the first floor, with a nearby patio offering simple indoor-outdoor living. All three bedrooms are located on the second floor for optimal comfort and privacy, including a lavish owners suite with a full bathroom and walk-in closet, surrounding a versatile loft space.
Stay informed with Livabl updates on new community details and available inventory.